眺望良し!古屋付土地
物件写真・間取り
物件概要
| 物件名 | 熱海自然郷古屋 |
|---|
| 交通機関 | JR熱海駅 バス 20分 約20分(管理事務所まで) 東海道線「熱海」駅より約8km車 車 20分 |
|---|
| 所在地 | 熱海市上多賀1065-335 |
|---|
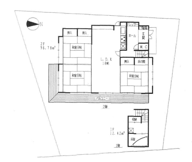
| 間取り詳細 | 3LDK |
|---|
| 土地権利 | 所有権 |
|---|
| 私道負担面積 | 無し |
|---|
| 建物構造 | 木造 |
|---|
| 階 / 階数 | 2階建 |
|---|
| 築年月 | 昭和48年築 |
|---|
| 都市計画 | 区域外 |
|---|
| 用途地域 | 無指定 |
|---|
| 建ぺい率 | 30% |
|---|
| 容積率 | 150% |
|---|
| その他制限 | 第2種風致地区 宅地造成等規制法 土砂災害(特別)警戒区域・急傾斜地の崩壊 |
|---|
| 接道 |
|
|---|
| 地目 | 山林 |
|---|
| 現況 | 建物有 |
|---|
| 販売戸数 | 1 |
|---|
| 管理費 | 48620円/年 |
|---|
| 管理名義変更料 | 区画名義変更料9,000円 |
|---|
| 引渡し | 即時 |
|---|
| 設備 | 熱海市市営水道/浄化槽/個別プロパン |
|---|
| 備考 | 別荘地内にテニスコート・カフェ・貸し駐車場有り オーナーズカード提示により割引あり(バス・テニスコート) ・管理費48,620円/年(個人)・171,600円/年(法人)一部未登記の建物あり |
|---|
| 物件番号 | SI1 |
|---|
| 情報登録日 | 2023年01月29日 |
|---|
| 情報更新日 | 2022年01月29日 |
|---|







