知らせ

Information

2022/01/29

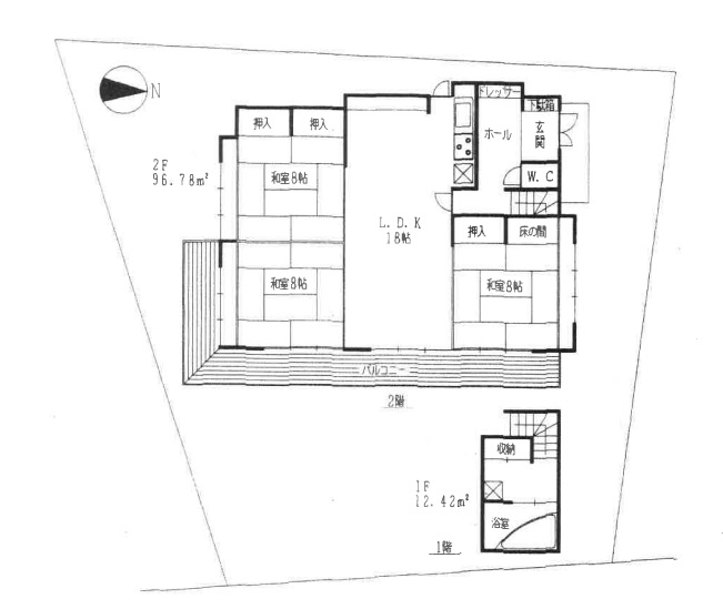
熱海自然郷古屋

建物の傷みは激しいですが、眺望は自慢です。

一戸建て|熱海自然郷古屋|セカンド・ハウスプロ 

人型アイコンを地図上にドラッグするとストリートビューで表示されます。

熱海市上多賀1065-335

地図を戻す